

型號規格 |
XYY/TS-1000-2 |
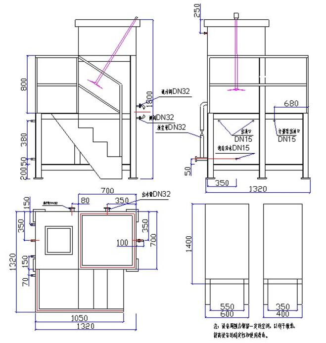
外形尺寸 |
依據現場實際制作 |
無故障運行時間 |
5000 小時 |
正常使用年限 |
30年 |
設計原理及特征 |
PE材質結構受壓容器、水力學、國家標準圖集 |
||
|
性能參數 |
該投藥裝置每單套分別配有兩只熟化藥箱和兩只投藥藥箱,并配有與其配套的攪拌裝置和計量投加裝置,分別用于投加兩種不同的藥劑,投藥方式為自動計量隨即攪拌、投加。 投加量為0-200L/h. |
||
|
設備標準功能描述 |
該工藝設備是按照整個工藝系統對進水、出水水質懸浮物即濁度要求標準進行設置的,***大程度上保障了藥劑的能效性,同時也***大程度上保障了藥劑投加量的合理性,杜絕了藥劑的浪費。 |
||
材料選用及加工工藝 |
藥箱選用PE材質,機架選用碳鋼材質并做防腐處理,攪拌泵、計量泵選用國內知名品牌,管材選用UPVC。 |
||